Oficinas ITD
Oficinas ITD
2018
2018
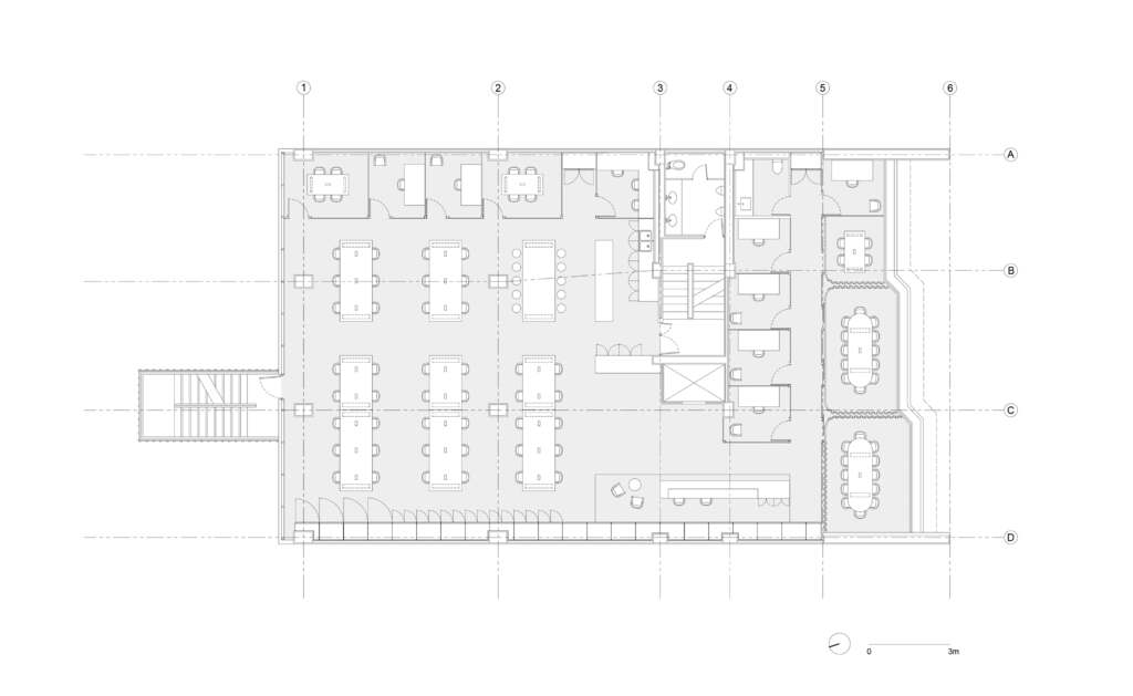
In late 2018, Departamento del Distrito was commissioned to design the new showroom and operation headquarters of ITD, a growing building technology firm. Located in Polanco, one of the most popular business and commercial zones in Mexico City, the project takes over an entire floor of an existing office building. More than two-thirds of the company's employees work outside the office on any given day, installing and maintaining technology systems throughout the city. To maximize spatial efficiency and meet the evolving demands of a growing company, the majority of the office layout is specified as free-plan working space. While private offices are designated for select administrative functions, the majority of employees are not assigned a personal work station and, instead, sit at any space they find available upon arrival.
A finales del 2018, Departamento del Distrito fue comisionado para diseñar el nuevo showroom y oficinas centrales de ITD, empresa especializada en las tecnologías en el ámbito de la construcción. Ubicado en Polanco, una de las zonas de negocios y comercio más importantes de la Ciudad de México, el proyecto ocupa un piso completo de un edificio existente de oficinas. Más de dos tercios de los empleados de la compañía trabajan diariamente fuera de la oficina, instalando y dando mantenimiento a sistemas de tecnología por toda la ciudad. Con el objetivo de maximizar la eficiencia de la oficina y satisfacer las demandas de una compañía en crecimiento, la mayor parte de la distribución de la misma es un espacio de trabajo abierto. Mientras que las oficinas privadas fueron asignadas únicamente a funciones administrativas específicas, la mayoría de los empleados no tienen un espacio de trabajo asignado, por lo que pueden sentarse en cualquier lugar que encuentren disponible a su llegada.
New program elements are inserted through a series of linear bars: meeting rooms line the front façade; private offices run along existing walls; and the staff kitchen is placed against the building’s core. The remaining area is left free of partitions, occupied solely by six oversized work tables. A module of 60 x 60 centimeters, extracted from the existing structural grid, dictates the proportion and rhythm of inserted elements. In addition, this module organizes an open ceiling plan through a series of linear ribs that hold lighting and provide support for building technology systems. Structural beams, wiring, and ductwork are left exposed, serving as a form of display for the company’s work.
At the detail level, custom interior finishes and furniture were developed for the project. Working within a primary material palate of raw concrete and polished aluminum, color and pattern were introduced at point-specific moments to designate special programs. Green terrazzo flecked with black, white and rose granite form the working surfaces of the staff kitchen and private bathroom. Vibrant yellow curtains provide operational flexibility for meeting spaces at the front façade. Suspended from a series of tracks, they can be positioned to subdivide space into three separate meeting areas or pulled back to create one large conference room. Perforated steel sheets are used for the reception desk, working tables, and main storage unit, where each employee has a private locker for personal items and work equipment.
Los nuevos elementos programáticos son insertados por medio de una serie de barras lineales: las salas de juntas se alinean con la fachada principal; las oficinas privadas corren junto a los muros existentes; y la cocineta está dispuesta contra el core del edificio. El área restante fue dejada libre de particiones y es ocupada exclusivamente por seis mesas de trabajo de gran tamaño. Un módulo de 60 x 60 centímetros, obtenido de la retícula estructural preexistente, dicta la proporción y el ritmo de los elementos insertados. Además, dicho módulo organiza una serie de costillas lineales que componen el plafón abierto, el cual sostiene las luminarias y proporciona soporte a los sistemas de tecnología de las oficinas. Las vigas estructurales, el cableado, y el sistema de ductos son dejados aparentes, sirviendo como una suerte de exhibidor para el trabajo de la propia empresa.
A la escala del detalle, se diseñó todo desde los acabados interiores hasta el mobiliario. Trabajando con una paleta de materiales compuesta por concreto aparente y aluminio pulido, el color y los patrones fueron introducidos en momentos específicos con el objetivo de resaltar actividades especiales. El terrazo verde con motas de granito negro, blanco y rosa fue utilizado en las barras de trabajo de la cocineta y del baño privado. Las cortinas color amarillo brillante proporcionan flexibilidad operativa a las salas de juntas en la fachada principal del edificio. Suspendidas de una serie de rieles, las cortinas permiten subdividir el espacio en tres distintas salas de juntas o ser completamente abiertas para crear una sola sala de conferencias. La lámina metálica lisa y multiperforada es utilizada para recubrir el mueble de recepción, las mesas de trabajo, y el mueble de guardado principal, en el cual cada empleado cuenta con un casillero donde poder almacenar artículos personales y equipo de trabajo.
Location
Polanco
Mexico City
Client
ITD
Year
2019
Category
Interior
Ubicación
Polanco
Ciudad de México
Cliente
ITD
Año
2019
Categoría
Interior
Status
Completed
Design
Departamento del Distrito in collaboration with Martha Peña
Team
Francisco Quiñones
Nathan Friedman
Martha Peña
Construction
Gonzalo Zermeño
Estado
Terminado
Diseño
Departamento del Distrito en colaboración con Martha Peña
Equipo
Francisco Quiñones
Nathan Friedman
Martha Peña
Construcción
Gonzalo Zermeño








